все квартиры
с мебелью
с размерами
план этажа

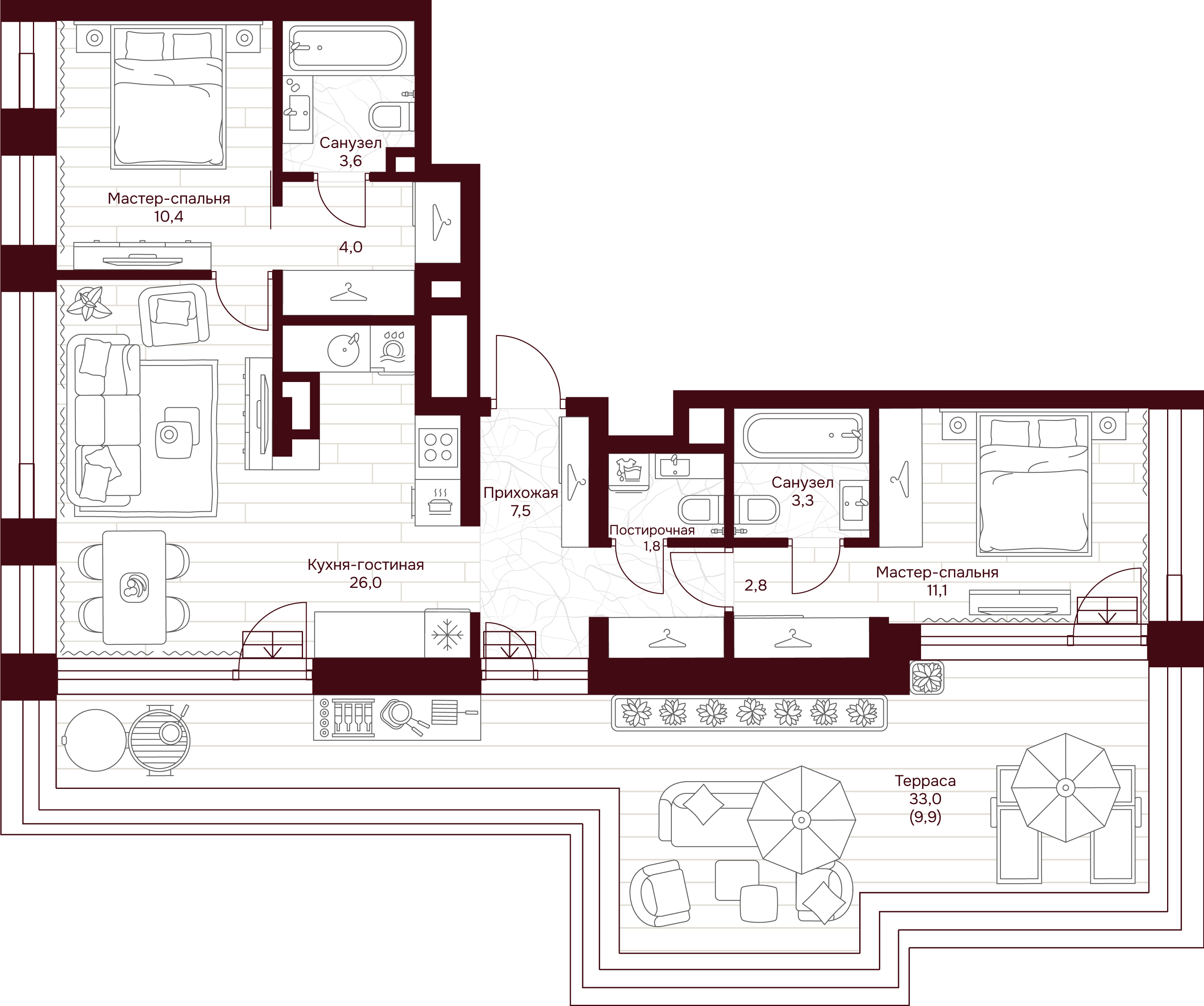
Квартира №2.15.1

площадь
80.4 м²
комнат
2
корпус
2
этаж
15
площадь балкона/террасы
33 м²
отделка
Без отделки
высота потолков
4.1 м
144 864 720
1 801 800 ₽/м²
Скидка 5% при 100% оплате
записаться на встречу

Отделка

дизайнерская
предчистовая

В дизайне мы опирались на стиль «Минимализм». Пастельные оттенки в его основе зрительно расширяют пространство и оптимально подходят для создания индивидуального интерьера с помощью цветовых акцентов и декора.

Офис продаж

Отправить заявку
* Нажимая на кнопку, Вы соглашаетесь с Политикой обработки ваших Персональных данных